多伎地域
4-033
- 分類
- 建物
- 物件番号
- 4-033
- 出雲市多伎町口田儀895-1
- 2025.07.28
詳細情報
- 物件番号
- 4-033
- 所在地
- 出雲市多伎町口田儀895-1
- 売買・賃貸
- 売買
- 金額
- 3,500,000円 (売買価格については相談に応じます。)
- 分類
- 建物
- 用途
- 住宅
- 構造
- 木造
- 宅地面積
- 651.67㎡
- 延床面積
- 217.26㎡(65.72坪)
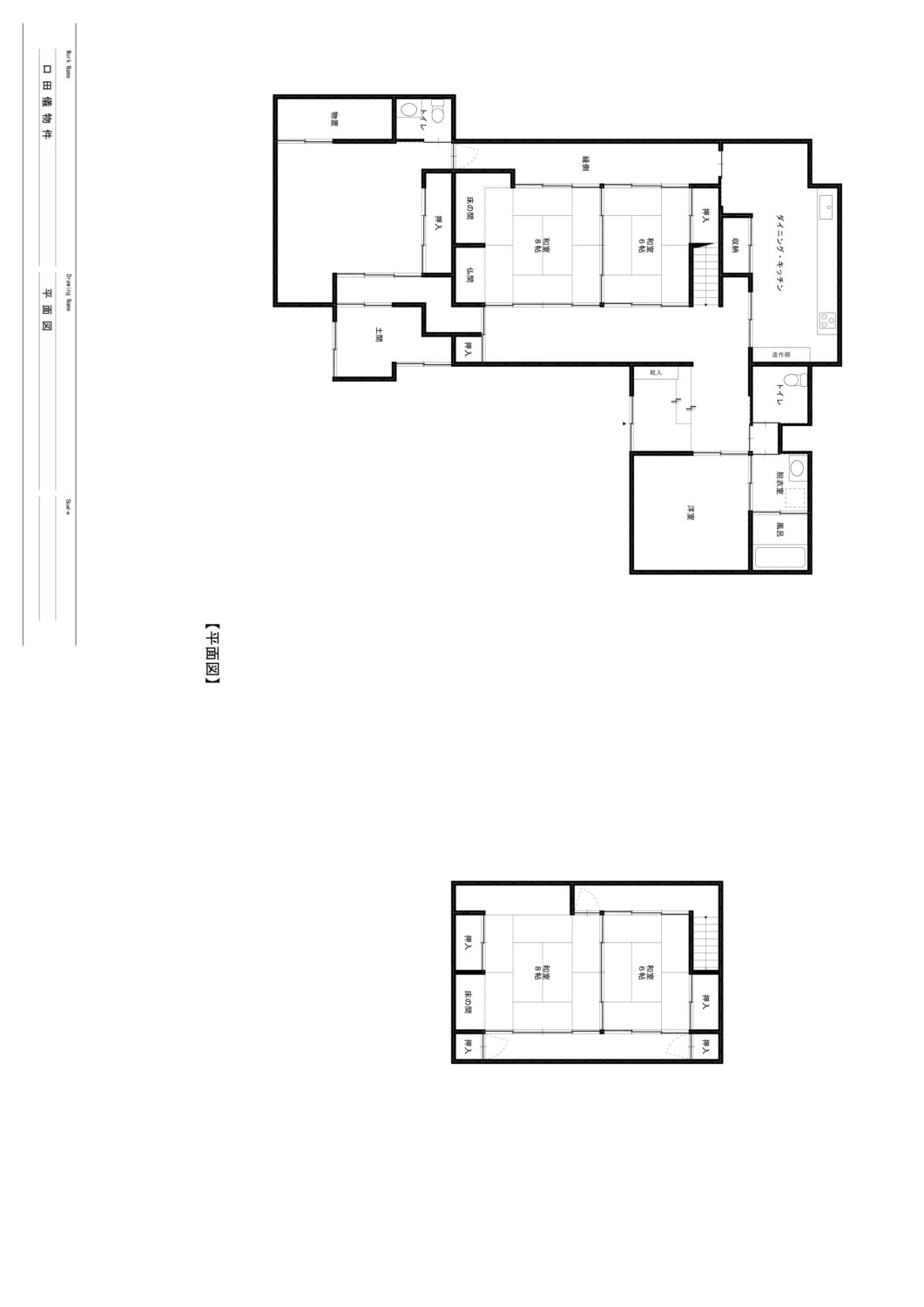
- 間取り
- 5LDK以上 (6DK)
- 建築時期
- 昭和37年7月
- 駐車場
- あり (4~5台)
- 水道
- 水道
- キッチン
- 電気
- バス
- 電気
- トイレ
- 水洗洋式
- 交通
- JR山陰本線田儀駅まで車で3分。
- 校区
- 多伎小学校、多伎中学校
- 土砂災害
警戒区域 - イエローゾーン
- 仲介業者
- あり
- 特徴
-
・閑静で静かな住宅街です。
・ユニットバス、システムキッチン付き。上下水道接続済み。
・付帯物件として倉庫(92.81㎡)、山林(932㎡)があります。(売買価格に含みます)
- 相手方に対する要望等
- ・地域との融和。
マップ
Contact
お問い合わせ
不明点などありましたら、お気軽にお問い合わせください。
0853-21-6210
開庁時間:8:30〜17:15




