大社地域
6-043
- 分類
- 建物
- 物件番号
- 6-043
- 出雲市大社町鷺浦51
- 2025.11.05
詳細情報
- 物件番号
- 6-043
- 所在地
- 出雲市大社町鷺浦51
- 売買・賃貸
- 売買
- 金額
- 1,500,000円 (価格応談可)
- 分類
- 建物
- 用途
- 住宅
- 構造
- 木造
- 宅地面積
- 126.9㎡
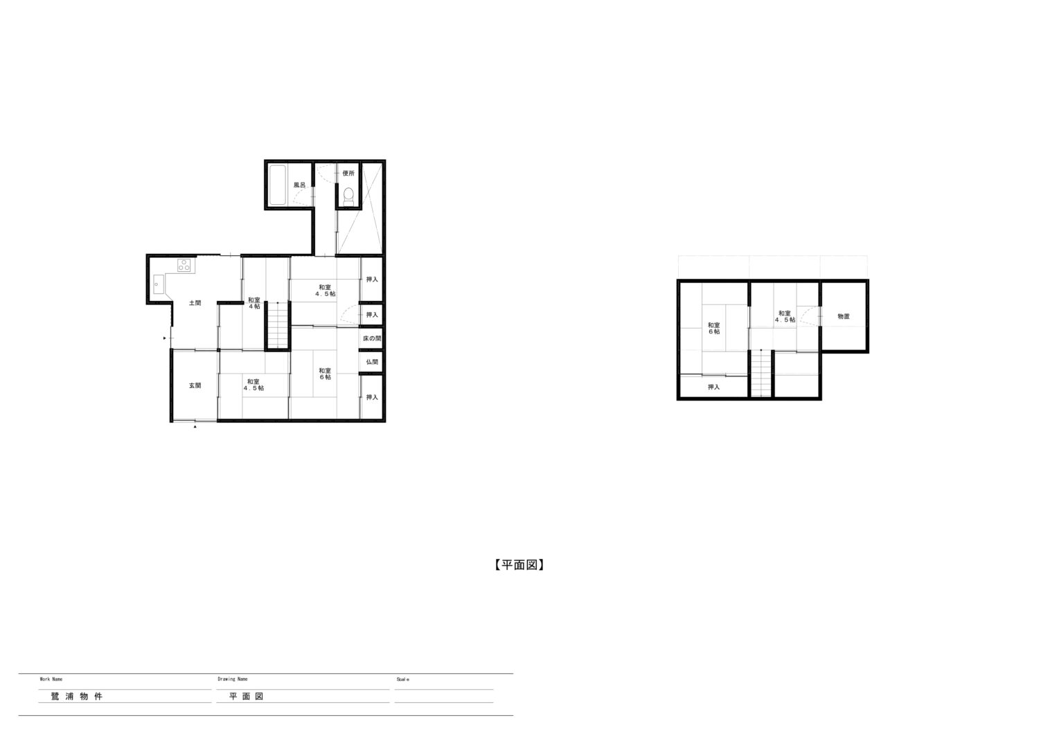
- 延床面積
- 77.91㎡(23.56坪)
- 間取り
- 5DK
- 建築時期
- 築100年前後(30年前に大規模改装)
- 駐車場
- なし
- 水道
- 水道
- キッチン
- LPガス
- バス
- LPガス
- トイレ
- 汲み取り洋式
- 交通
- 一畑電車大社線出雲大社前駅まで車で20分。
- 校区
- 大社小学校、大社中学校
- 土砂災害
警戒区域 - イエローゾーン
- 仲介業者
- あり
- 特徴
-
・約30年前に大規模改装しています。
・付帯物件として畑(656㎡)があります。(希望があれば売買価格に含みます)
マップ
Contact
お問い合わせ
不明点などありましたら、お気軽にお問い合わせください。
0853-21-6210
開庁時間:8:30〜17:15




