斐川地域
7-034
- 分類
- 建物
- 物件番号
- 7-034
- 出雲市斐川町上庄原1760-3
- 2026.04.21
詳細情報
- 物件番号
- 7-034
- 所在地
- 出雲市斐川町上庄原1760-3
- 売買・賃貸
- 売買
- 金額
- 7,000,000円
- 分類
- 建物
- 用途
- 住宅
- 構造
- 木造
- 宅地面積
- 535㎡
- 延床面積
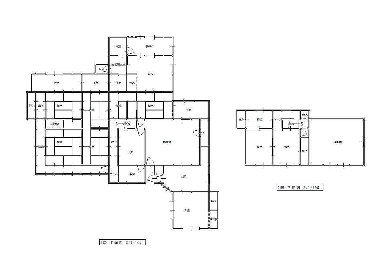
- 141.71㎡
- 間取り
- 5LDK以上 (13DK)
- 建築時期
- 昭和40年3月
- 駐車場
- あり (軽1台)
- 水道
- 水道
- キッチン
- 電気
- バス
- 電気
- トイレ
- 水洗洋式
- 交通
-
・JR山陰本線荘原駅まで車で6分。
・一畑電車北松江線雲州平田駅まで車で11分。
- 校区
- 荘原小学校、斐川東中学校
- 土砂災害
警戒区域 - 該当なし
- 仲介業者
- あり
- 特徴
-
・付帯物件として作業場、畑があります。(売買価格に含みます)
・計5筆(1760-3:宅地、1760-2、1760-5、1760-6、1761-2:畑)
・ご希望があれば道路を挟んで南側の雑種地(287㎡)もお譲りします。(価格については相談)
・浴室焚口有。電温故障。浴室タイル剝がれ有り。
・現状渡しでお願いします。
マップ
Contact
お問い合わせ
不明点などありましたら、お気軽にお問い合わせください。
0853-21-6210
開庁時間:8:30〜17:15




